Modernized A-Frame House Near Saksild Beach | House in Odder

3 Bedroom House in Saksild Strand, Odder
Modernized A-Frame House Near Saksild Beach is located in Odder, just 17 miles from Aarhus Central Station and 17 miles from Aarhus City Hall. Guests can benefit from a terrace and an outdoor fireplace. Free Wifi is available throughout the property and Marselisborg is 16 miles away. The vacation home is composed of 3 separate bedrooms, a fully equipped kitchen with a dishwasher and an oven, and 1 bathroom. The accommodation has a fireplace. For guests with children, the vacation home provides outdoor play equipment. ARoS Aarhus Art Museum is 17 miles from Modernized A-Frame House Near Saksild Beach, while Aarhus Cathedral is 17 miles away. Aarhus Airport is 40 miles from the property.
Modernized A-Frame House Near Saksild Beach is located in Odder.
This 3 Bedrooms House is suitable for tourists and travelers. It has several amenities that would guarantee your comfort. These amenities include: Parking, Ocean View, Oceanfront, and several others. This is a 3 star rated property . Coming to Odder and needing a place to stay? Be it for work or for leisure, consider staying at this House for your next visit, you will surely love it.
You can check the reviews and description of this 3 Bedrooms House if you want to learn more about this Hotala.uk place in Odder. These details are authentic, as they are provided by our partner, booking.com.
This Modernized A-Frame House Near Saksild Beach in Odder is well equipped and has all facilities that have been listed below. Please note that these details were shared to us by booking.com for the listed “Modernized A-Frame House Near Saksild Beach”. We solely rely on their shared details and are regarded as “accurate”. If you have any concerns about the information or accuracy describing this House, please let us know.
Amenities
Facility Overview
-
Free parking
-
Parking
-
Hiking
-
Outdoor play equipment for kids
-
Board games/Puzzles
-
Wifi in all areas
-
Heating
-
Smoke-free property
-
Internet
-
Wifi
-
Free Wifi
-
BBQ facilities
-
Outdoor furniture
-
Terrace
-
Outdoor fireplace
-
Beach umbrellas
Policies
Room Arrangement
Room Info | Facilities |
---|---|
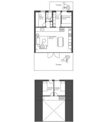
Three-Bedroom Holiday Home
Room Type:
Vacation Home
Room Size:
77 m2
|
Food & DrinkTea/Coffee makerKitchenKitchen, Electric kettle, Kitchenware, Coffee machine, Dining table, Refrigerator, Oven, DishwasherLiving AreaDesk, FireplaceBathroomPrivate bathroomGeneralTrash cans, Heating, Private entranceOutdoorsBarbecue, Outdoor furniture, TerraceEntertainment & Family ServicesBoard games/puzzles |
FAQ's
Is this Saksild Strand house pet-friendly for guests?
No, pets are not allowed at this property. Check the guest reviews to learn what guests had to share.
What time is check-in & check-out at Saksild Strand house?
Check-in time for Saksild Strand house starts counting from 3:00 PM and check-out is until 10:00 AM. However, early check-in or late check-out can sometimes be negotiated between the guest and the owner or the manager of this property.
Does the Saksild Strand house have a swimming pool?
No, this Saksild Strand house does not have a swimming pool. Check the Facility Overview section for details about the pool and other available facilities.
How much does it cost per night to stay in Saksild Strand house?
Best-rates for the Saksild Strand house starts from $359 per night with includes Balcony/Terrace, Child Friendly, Internet, Parking, Ocean View, Oceanfront, Security/Safety, Sports/Activities, Fireplace/Heating, Guest Services, Barbecue/Outdoor Cooking, View with all other facilities. Hotala.uk matches every traveler with their perfect hotel, resort, or rental and whether you are traveling with a group, friends, family, or pets.
Is Saksild Strand house a family-friendly place to stay?
Based on the information we have received from the owner or our partner, this is considered to be a family-friendly property. Families have rated this house 3 stars or guests have recommended them suitable for families. As reported by the owner or manager, the house has specified that children are welcome. Please see details about suitability for your family or inquire with the property to learn more.
Is the Saksild Strand house wheelchair accessible or offer services for disabled guests?
Based on the information received from our partner, the Saksild Strand house has not specified they are wheelchair accessible. Likewise, there is not an elevator specified as being available at the property. Specific accessibility details may be addressed in the property details section of this page.
What is the minimum night stay policy for the Saksild Strand house?
Based on the information reported by the owner or manager, the Saksild Strand house indicates 1 day stay policy at this house. Guests are cautioned that the minimum stay policy may differ based on seasonality or availability and may be at the discretion of the owner or manager.
What cancellation policy is in place for Saksild Strand house?
Based on the information reported by the owner or manager, details for the cancellation policy for the Saksild Strand house are as follows: Free cancellation Guests are cautioned that the cancellation policy may differ based on seasonality, availability, or current travel restrictions. Guests should also be aware that this policy may be subject to change and should be confirmed prior to booking. More details may be available on this page in the property description. However, early check-in or late check-out can sometimes be negotiated between the guest and the owner or the manager of this property.