Aint Dat A Beach II - 2BR Upper Unit on the 2nd Row | Condo in North Topsail Beach

2 Bedroom Condo in Ocean City Beach, North Topsail Beach
Ain't Dat a Beach II - 2 BR is a great place to relax and unwind any time of year! This recently renovated upper level of north side of a duplex has everything you need to get away from it all! You'll spend plenty of time in the quaint open living area with living room, dining and kitchen all together. Enjoy the sun deck out front to capture the sights, sounds and smells of the Atlantic Ocean at this charming second row home located on a quiet street in North Topsail Beach. Need more room? Add the lower floor unit for a 3 bedroom, 3 bath home for your vacation!
Sweet Dreams: *Linens (bed/bath) are not included!
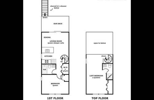
1st Level: Queen Bedroom; TV; uses hall bathroom (tub/shower)
Top Level via spiral staircase: Loft Bedroom with 2 Queen beds; TV and private full bathroom (shower)
1st Level: Queen Sleeper Sofa in living room; uses hall bathroom
Location:
Your beach house is located approximately 5.1 miles north of the Surf City high rise bridge. Be sure to visit some local attractions such as the Karen Beasley Sea Turtle Hospital and the Missiles and More Museum, which tells the story of our island’s past.
Amenities:
Central Heat/Air
3 TVs with Streaming (No Cable)
Wireless Internet
Full Kitchen with Dishwasher & Microwave
Washer/Dryer
Ceiling fans
Ocean-side sun deck with deck furniture
Shared outside shower - cold water only
Additional Property Information:
Dog Friendly! Max Allowed 2 (Sorry no cats)
Smoke Free - No smoking allowed by anyone on the premises
Parking for 2 vehicles only
Public beach access is just a few steps away at the foot of 15th Avenue
1 BR Lower Unit is available to rent indivdually or together with this unit. Lower Unit may be occupied.
Units are joined by exterior stairs only (no interior stairs)
Trip Preparation:
Rental homes with Ward Realty all have minimum standards to make your stay be as close to home away from home as possible. All of our rentals include fully equipped kitchens, basic small appliances (microwave, coffee maker, toaster, blender), pillows, comforters/bedspreads, television(s), central heating/air, iron/ironing board and much more! See our site for a helpful list of what to bring with you to your rental. Please note that this home does not include sheets or towels. You may bring your own or rent them through Ward Realty.
Disclaimer: Photos displayed on this website are intended to provide a general representation of our vacation rental properties and the surrounding areas. While some amenities may be pictured, they are for display purposes only. Only those amenities listed on the website description, not in photos, are available. While we strive to keep all images accurate and up to date, furnishings, décor, and amenities may change over time and may vary slightly from what is shown. Seasonal differences, weather conditions, and lighting may also affect the appearance of the property. We do our best to present each rental honestly, but we cannot guarantee that every detail will be exactly as depicted. If you have specific questions or requirements, please contact us directly before booking.
Aint Dat A Beach II - 2BR Upper Unit on the 2nd Row is located in Ocean City Beach. Aint Dat A Beach II - 2BR Upper Unit on the 2nd Row provides accommodation, featuring Child Friendly, Kitchen, TV, among other amenities. This Condo features Child Friendly, Kitchen, TV, to make your stay a comfortable one.
Aint Dat A Beach II - 2BR Upper Unit on the 2nd Row has 2 Bedrooms , 2 Bathrooms, and max occupancy of 8 people. The minimum rental for this property is 1 nights, but this can change depending on the season you plan on staying. Previous guests have given good rated it, and VRBO labeled it a top-rated Condo because of the excellent services rendered by the owner or manager of this Condo, and has consistently provided great experiences for their guests. Most families or guests that use it recommend it to their friends and some of them are repeat guests. Condo has a friendly neighborhood, and the Ocean City Beach has interesting places to visit. If you want to learn more about the Condo in Ocean City Beach, such as places to visit and things to do nearby, you can check below to learn more.
Amenities
Facility Overview
-
Air conditioning
-
Heating
-
2 bathrooms
-
Shower
-
Sofa bed
-
2 bedrooms
-
Dining table
-
Refrigerator
-
Microwave
-
Blender
-
Cookware/dishes/utensils
-
Oven
-
Coffee/tea maker
-
Toaster
-
Dishwasher
-
Laundry facilities
-
Washing machine and dryer
-
Near the beach
-
Onsite parking
-
Pet friendly
-
Smoke-free property
-
Swimming nearby
-
Windsurfing nearby
-
Fishing nearby
-
Surfing/body boarding nearby
-
Smart TV
-
English
-
In a village
-
Near the sea
-
Iron/ironing board
-
Free WiFi
-
Outdoor furniture
-
Patio
-
Smoke detector installed (host has indicated there is a smoke detector on the property)
-
Carbon monoxide detector not reported (host has not indicated whether there is a carbon monoxide detector on the property; consider bringing a portable detector)
Policies
FAQ's
Is this Ocean City Beach condo pet-friendly for guests?
Yes, pets are allowed at this property. Check the guest reviews to learn what guests had to share.
Does the Ocean City Beach condo have a swimming pool?
No, this Ocean City Beach condo does not have a swimming pool. Check the Facility Overview section for details about the pool and other available facilities.
How much does it cost per night to stay in Ocean City Beach condo?
Best-rates for the Ocean City Beach condo starts from $295 per night with includes Air Conditioner, Parking, Pet Friendly, Balcony/Terrace, Oceanfront, Child Friendly, Kitchen, TV, View, Ocean View, Security/Safety, Fireplace/Heating, Internet, Laundry with all other facilities. Hotala.uk matches every traveler with their perfect hotel, resort, or rental and whether you are traveling with a group, friends, family, or pets.
Is Ocean City Beach condo a family-friendly place to stay?
Based on the information we have received from the owner or our partner, this is considered to be a family-friendly property. Families have rated this condo Good or guests have recommended them suitable for families. As reported by the owner or manager, the condo has specified that children are welcome. Please see details about suitability for your family or inquire with the property to learn more.
Is the Ocean City Beach condo wheelchair accessible or offer services for disabled guests?
Based on the information received from our partner, the Ocean City Beach condo has not specified they are wheelchair accessible. Likewise, there is not an elevator specified as being available at the property. Specific accessibility details may be addressed in the property details section of this page.
What is the minimum night stay policy for the Ocean City Beach condo?
Based on the information reported by the owner or manager, the Ocean City Beach condo indicates 1 day stay policy at this condo. Guests are cautioned that the minimum stay policy may differ based on seasonality or availability and may be at the discretion of the owner or manager.
What cancellation policy is in place for Ocean City Beach condo?
Based on the information reported by the owner or manager, details for the cancellation policy for the Ocean City Beach condo are as follows: Cancellation policy Guests are cautioned that the cancellation policy may differ based on seasonality, availability, or current travel restrictions. Guests should also be aware that this policy may be subject to change and should be confirmed prior to booking. More details may be available on this page in the property description. However, early check-in or late check-out can sometimes be negotiated between the guest and the owner or the manager of this property.